Hearts and Hands Free Clinic
This is a conceptual design for the transfer of the Hearts and Hands clinic located in Statesboro, GA, into the Van Buren House. The Van Buren House was originally a hospital, built in 1914 by Doctor Van Buren. Currently the building is not being used. The owner, who was actually born in that hospital, would like to see the building to go back to its healthcare roots.

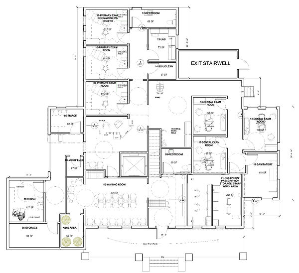
First Floor

Second Floor

This project was inspired by the building blocks of the human body. Starting with the ceiling, representing the cells of the heart, that is featured in the reception/lobby/waiting, conference, and education/wellness rooms. The heart pumps blood in and out quickly, similar to the fast paced motion happening in the reception and education room, as well as the complex thought going on in the conference room to maintain the practice. The walls, representing bone and muscle tissue, demonstrate the strength that clients can gather from the education and treatment received. Walls are the support of the building, just like muscles and bones are the support system of the body. Ending with the floor, represented by skin cells which are constantly being regenerated, that demonstrates maintaing a healthy lifestyle is a never ending process.
Reception/Lobby/Waiting Room




Women's Health/Primary Medical Exam Room




Education/Wellness Room





Conference Room


